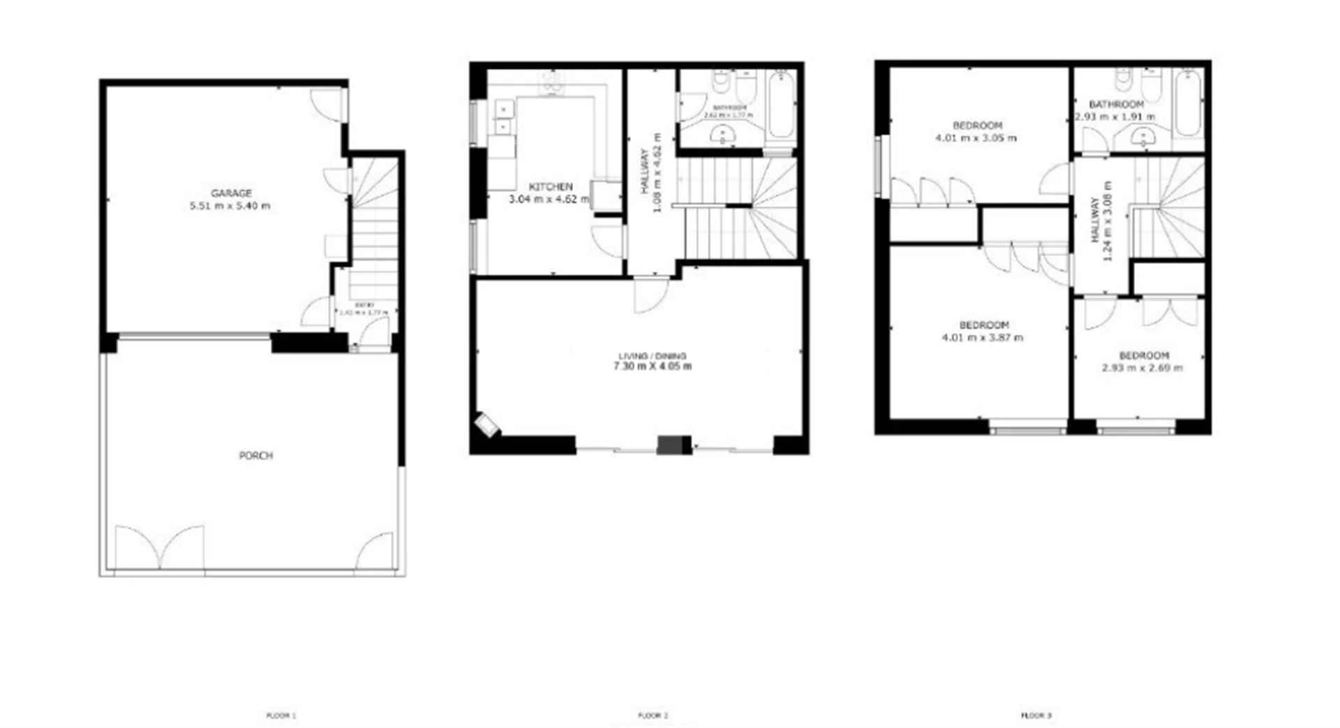
Detached House , 3 Bedrooms, 121 Sqm
Arcozelo, Vila Nova de Gaia
420,000 €
-
Bedrooms
3
-
Bathrooms
2
-
Total Area
121 sqm
-
Price Per Sqm
3,471 €
-
Reference
600309
Description
Moradia T3 em Miramar – A 200m da Praia!
Grande oportunidade para adquirir esta fantástica moradia T3 com 121 m², localizada numa das zonas mais privilegiadas e tranquilas de Vila Nova de Gaia – Miramar, Arcozelo.
Com uma localização excecional, a apenas: 200 metros da praia 200 metros do Campo de Golf Miramar 400 metros da estação de comboios de Miramar Próxima das principais vias de acesso, como a A29 e A44
Esta moradia de três pisos está organizada da seguinte forma: Rés do chão: Garagem com capacidade para dois carros, espaço de arrumos e acesso ao logradouro exterior 2º e 3º pisos: Zona habitacional composta por: Hall de entrada acolhedor Sala comum com lareira, ideal para momentos de convívio Cozinha ampla e equipada Três quartos com roupeiros embutidos Duas casas de banho completas Perfeita para quem procura qualidade de vida junto ao mar, com todas as comodidades à porta.
Viva a poucos passos da praia com o conforto de uma moradia espaçosa e funcional.
Agende já a sua visita e venha conhecer o seu futuro lar!
Specific features
- Detached House
- 121 sqm built
- 3 Bedrooms
- 2 Bathrooms
- Plot of 121 sqm
- Parking spot included in the price
Other features
- Garage